Duravit

DuraSystem wc-element, Basic

500 x 155 x 1148 mm

Artikelnummer: 88241

206,90 €
Op voorraad
Levering: ongeveer

Alleen 999 stuks beschikbaar

Prijs incl. btw, excl. verzendkosten

Deze variant is momenteel niet beschikbaar. Kies alstublieft een andere optie.

  • American Express
  • Apple Pay
  • Google Pay
  • iDEAL
  • Maestro
  • Mastercard
  • PayPal
  • Shop Pay
  • Visa
  • Klarna

Productinformatie

DuraSystem® wc-element voor droge montage

Dit gedeeltelijk voorgemonteerde DuraSystem® wc-voorwandelement is geschikt voor droge montage van uw wandcloset en verbergt op elegante wijze alle benodigde functies. De zelfdragende WC-voorwandinstallatie verbergt niet alleen een verborgen reservoir, maar houdt ook een indrukwekkend totaal van negen liter spoelwater vast, ondanks een minimale spoelwaterbehoefte van slechts drie liter. Met de waterbesparende dubbele spoelfunctie kun je kiezen tussen twee spoelvolumes.

Dit voldoet niet alleen aan de moderne hygiëne-eisen, maar zorgt ook voor een zuinige beheersing van het waterverbruik. Het spoelvolume kan ook individueel worden ingesteld. Het inbouwelement is geïsoleerd tegen condensatie. De bijpassende mechanische spoelplaat A1 van glas of kunststof maakt het hoogwaardige Duravit-design ook zichtbaar voor de wand.

 

Afmetingen en specificaties

Materiaal Staal (frame)
Plastic (stortbak)
Kleur Anthraciet
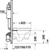
Breedte 500 mm
Hoogte 1148 mm
Diepte 155 mm
Toepassingsgebied WC
Zelfdragende Constructie Ja
Voetsteunen In hoogte verstelbaar, 0 - 240 mm
Afstelbaar spoelwatervolume 6 liter (groot spoelwatervolume)
3 liter (klein spoelwatervolume)
Spoelingstechnologie 2-Spoelvolumetechnologie
Activering Voor
Inbouwreservoirvolume 9 l
OP-...Stortbak geïsoleerd tegen condensatie Ja
Positie wateraansluiting Links|Achter
Koppelplaat Zonder
Opvulgewicht ca. 32 kg
Montage type Drywall montage
Montageniveau Deel gemonteerd
Incl. Afdekkleppen Ja
Inclusief hoekkleppen Ja
Inclusief voetjes Ja

Leveringsomvang

  • Installatie-element incl. stortbak

Verzendkosten

9,90 EUR

Levering door pakketdienst

We verzenden kleine en lichte artikelen via DHL en DPD. Verzending naar pakketstations (DHL ServicePoint / DPD Pickup Parcelshop) is niet mogelijk in Nederland.

Veiligheid van het product

Merk: Duravit

Fabrikantinformatie:

Duravit Aktiengesellschaft
Werderstraße 36
78132 Hornberg
Duitsland
info@duravit.de

  • Snelle verzending

  • Eigen productie

  • 30 dagen retourrecht

  • Beste kwaliteit

Default Title
  • Maak van staal met een kunststofreservoir
  • Geschikt voor wc's
  • Inbouwtype: In lichte staanderconstructie voor massieve wand
  • Dubbele spoeling
  • Montagetype: Drywall

Inspiratie van onze klanten

Deze look kopen

Inspiratie voor jou

Bekijk galerij

Merkvoordelen

Individueel ontwerp van Bernstein

Snelle verzending

Persoonlijke benadering van elke bestelling

Veilige betaling